Outlet navigation
Last edited: 10/03/2026
Introduction:
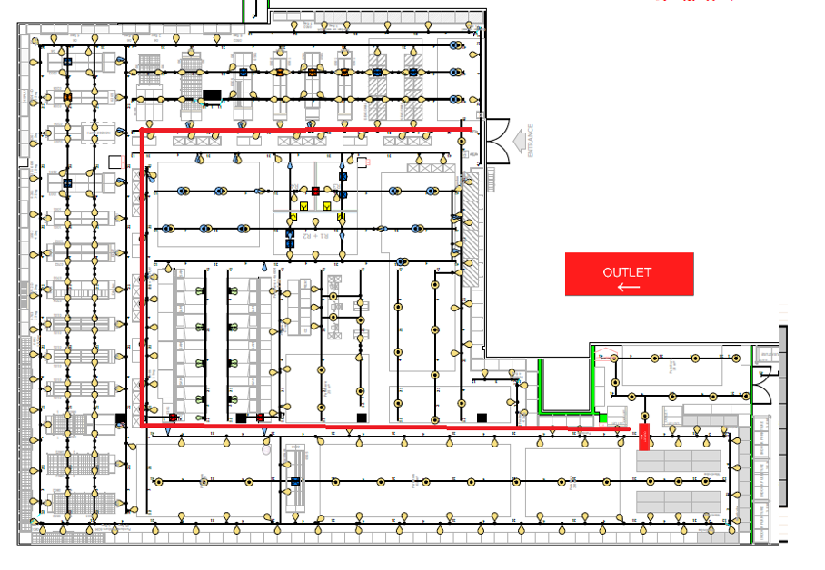
In stores with more complex, multi-level, or non-linear layouts where the Outlet area does not have natural visibility, LED frame and navigation sign may be installed to support customer awareness and wayfinding.
Store Design will define and mark the placement in the lighting plan to ensure correct positioning and that the necessary power track and installation requirements are in place.
Marketing material is being produced locally by SCM. Files can be found below.
Material description:
The material should be PP 240 µ or Backlit Backlit Polyester Film in 220 microns
Size is as stated in filesize 1178x395mm.
Examples:



| Filename | Size | Upload date | Download |
|---|---|---|---|
| 13626_-_outlet_navigation_sign_led_frame_1178x395mm_arrow-left_print.pdf | 1.45 MB | 02.03.2026 | Download |
| 13626_-_outlet_navigation_sign_led_frame_1178x395mm_arrow-right_print.pdf | 1.45 MB | 02.03.2026 | Download |
| 13626_-_outlet_navigation_sign_led_frame_1178x395mm_arrow-up_print.pdf | 1.41 MB | 10.03.2026 | Download |
| 13626_-_outlet_navigation_sign_led_frame_1178x395mm_print.pdf | 1.45 MB | 02.03.2026 | Download |